
Wohnanlage Aspach - Marktplatz 8
Der im Jahr 1869 erbaute Vierseithof wurde im Jahr 2002 komplett saniert. Es befinden sich u.a. 18 Wohnungen, das Gemeindeamt, der Stiblersaal und eine Kunst- und Handwerksstube in dem schönen Gebäude. Die Wohnungen sind über die Hofseite erreichbar. Die zu den Wohnungen zugeordneten Kellerabteile befinden sich auf dem gleichen Stockwerk wie die jeweiligen Wohnungen.
- provisionsfrei
- unbefristet
- Abstellplatz
- Kellerabteil
- Allgemeinräume
- Grünanlage
- Fernwärme
- Top
- Geschoß
- Zimmer
- Wohnen (ca.)
- Freiflächen
- Eigengarten
- Parkplatz
- Kaution
- Miete (ca.)
- Zimmer: 2
- Freiflächen: m²
- Keller: m²
- Parkplatz: -
- Kaution: € 1.600
- Miete: € 576,34
Marktplatz 8/2/1
Mtl. Miete inkl. BK, Heizung und USt.
Ohne Strom.
vermietbar ab sofort
- Zimmer: 3
- Freiflächen: m²
- Keller: m²
- Parkplatz: -
- Kaution: € 2.391
- Miete: € 782,04
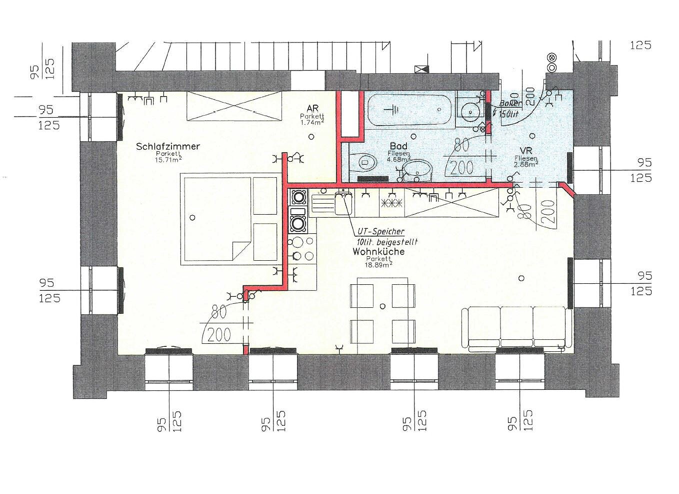
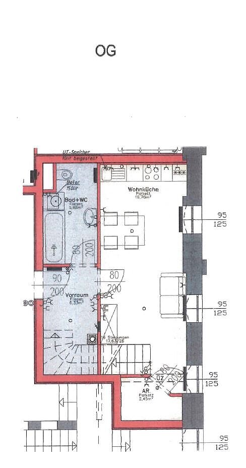
Marktplatz 8/5 - Maisonettewohnung
Monatliche Miete inkl. BK, Heizung und Ust.
Exkl. Strom.
Die Wohnung ist auf 2 Etagen aufgeteilt!
Bezug ab sofort - Übersiedelungsbonus - 3 Monate nur die Betriebskosten zahlen !!
Keine Freifläche!
1. ET: Vorraum, Bad/WC, Wohnküche, Abstellraum
2. ET: Kinderzimmer, Schlafzimmer, WC
- Zimmer: 4
- Freiflächen: m²
- Keller: m²
- Parkplatz: -
- Kaution: € 3.260
- Miete: € 1.085,39
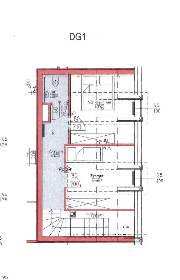
Marktplatz 8/9
Monatliche Miete inkl. Betriebskosten Heizung und USt.
Exkl. Strom.
Keine Freifläche!
Die Wohnung ist auf 2 Etagen aufgeteilt (OG+DG).
Übersiedelungsbonus - 2 Monate nur die Betriebskosten zahlen !!
Etage 1: Vorraum, WC, Wohnküche
Etage 2: Schlafzimmer mit Schrankraum, 2 Kinderzimmer, Bad/WC.
Vermietbar ab sofort
- Zimmer: 2
- Freiflächen: m²
- Keller: m²
- Parkplatz: -
- Kaution: € 2.100
- Miete: € 720,49
Marktplatz 8 / Top 7
Mtl. Miete inkl. BK, Heizung und USt. Ohne Strom
Küche vorhanden (Ablöse seitens Vormieter gewünscht)
Übersiedelungsbonus - 2 Monate nur die Betriebskosten zahlen!!
Bezug ab sofort
















































