
Wohnanlage Leopoldschlag - Am Mühlbach 1
Am Mühlbach 1,
4262 Leopoldschlag
Die ruhig gelegene Wohnanlage am Ende des Gemeindegebietes wurde im Jahr 1995/1996 erbaut und verfügt über insgesamt 8 Wohnungen, verteilt auf 2 Stockwerke. 2015 wurde die Außenanlage saniert. Im Kellergeschoß befinden sich die Allgemeinräume sowie die zu den Wohnungen zugeordneten Kellerabteile. Zur Anlage gehört ein Spielplatz samt Grünfläche. Die Parkplätze sind vor dem Haus situiert. Die Gemeinde Leopoldschlag liegt im Mühlviertler Kernland und bietet im Sommer wie im Winter ein großes Aktivitäts- und Freizeitprogramm.
- provisionsfrei
- unbefristet
- Kellerabteile
- Allgemeinräume
- Spielplatz mit Grünfläche
- Abstellplatz im Freien
- Loggia/Balkon
Flächen
- Top
- Geschoß
- Zimmer
- Wohnen (ca.)
- Freiflächen
- Eigengarten
- Parkplatz
- Kaution
- Miete (ca.)
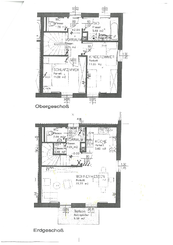
- Zimmer: 3
- Freiflächen: 7,14 m² (Loggia + Balkon)
- Keller: m²
- Parkplatz: 1 (Freistellplatz)
- Kaution: € 1.924
- Miete: € 637,25
Am Mühlbach 1 / Top 6
Mtl. Miete inkl. BK, Abstellplatz und USt. Ohne Strom und Heizung.
Bezug ab 01.03.2026
HWB-Wert: 44 kWh/m²
HWB-Klasse:
fGEE-Wert: 0,75
fGEE-Klasse:
Sie haben Interesse?
Ich freue mich über Ihre Anfrage!




