
Wohnanlage Niederwaldkirchen - Eppoweg 2
Eppoweg 2,
4174 Niederwaldkirchen
Die ruhig gelegene Wohnanlage wurde in den Jahren 1997/1998 erbaut und verfügt über insgesamt 16 Wohnungen, verteilt auf 4 Stockwerke. 2017 wurde das Haus außen saniert. Im Untergeschoß befinden sich die Allgemeinräume sowie die zu den Wohnungen zugeordneten Kellerabteile. Rund um die Anlage ist eine Grünfläche samt Spielplatz angelegt. Die Parkplätze sind straßenseitig situiert.
- unbefristet
- provisionsfrei
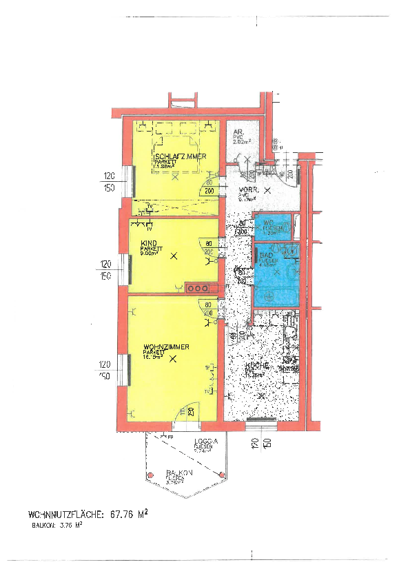
- Kellerabteil
- Loggia/Balkon
- Abstellplatz
- Grünfläche
- Ölheizung
- Haussanierung 2017
Sie haben Interesse?
Ich freue mich über Ihre Anfrage!



