
Wohnanlage Reichenthal - Am Hang 3
Am Hang 3,
4193 Reichenthal
Die Gesamtwohnanlage Am Hang 1 – 3 wurde in den Jahren 1996/1997 erbaut und besteht aus 3 nebeneinanderliegenden Wohnblöcken. Jede Wohnung verfügt über einen zugeordneten Abstellplatz. Im Gartengeschoß befinden sich neben zwei Wohnungen auch die Allgemeinräumlichkeiten, wie die zu jeder Wohnung zugeordneten Kellerabteile, Waschküche, Fahrradraum usw. situiert. Für die gesamte Wohnanlage gibt es einen Spielplatz.
- unbefristet
- provisionsfrei
- Abstellplatz
- Loggia/Balkon
- Kellerabteil
- Allgemeinräume
Flächen
- Top
- Geschoß
- Zimmer
- Wohnen (ca.)
- Freiflächen
- Eigengarten
- Parkplatz
- Kaution
- Miete (ca.)
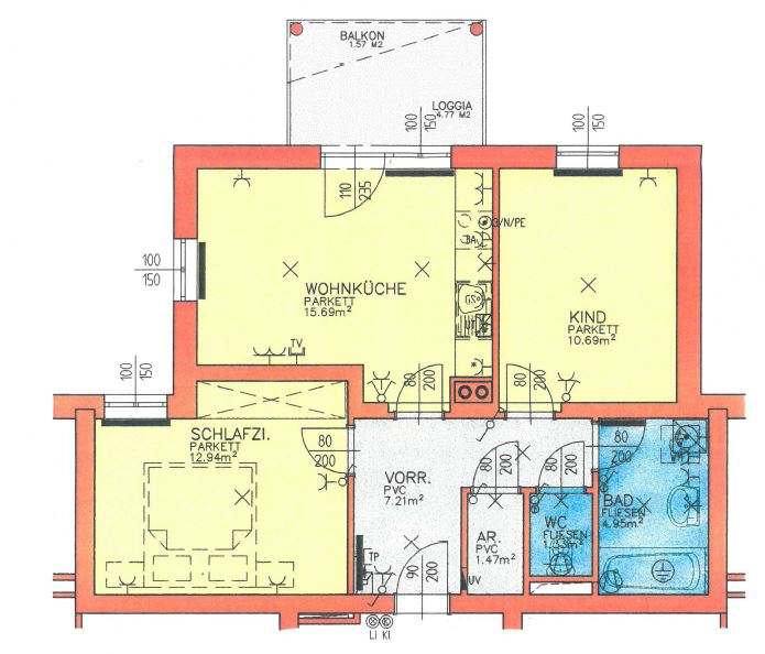
- Zimmer: 3
- Freiflächen: 6,34 m² (Loggia + Balkon)
- Keller: m²
- Parkplatz: 1 (Freistellplatz)
- Kaution: € 2.250
- Miete: € 731,49
Am Hang 3 Top 3
Mtl. Miete inkl. BK, KFZ-Stellplatz und USt.
Ohne Strom und Heizung.
Vermietbar ab sofort
HWB-Wert: 75 kWh/m²
HWB-Klasse: C
fGEE-Wert:
fGEE-Klasse:
Sie haben Interesse?
Ich freue mich über Ihre Anfrage!













