
Wohnanlage Treubach - Untertreubach 74
Untertreubach 74,
5272 Treubach
Die am Ortsrand gelegene Wohnanlage wurde 2001/2002 erbaut und besteht aus 6 Wohneinheiten. Die Wohnungen verfügen entweder über einen zugeordneten Abstellplatz im Freien oder einen Garagenabstellplatz. Im Untergeschoß befinden sich die Allgemeinräumlichkeiten, wie die zu jeder Wohnung zugeordneten Kellerabteile, Waschküche, Fahrradraum usw. Rund um die Anlage ist eine kleine Grünfläche angelegt.
- provisionsfrei
- unbefristet
- Loggia/Terrasse/Eigengarten
- Garage
- Grünanlage
Flächen
- Top
- Geschoß
- Zimmer
- Wohnen (ca.)
- Freiflächen
- Eigengarten
- Parkplatz
- Kaution
- Miete (ca.)
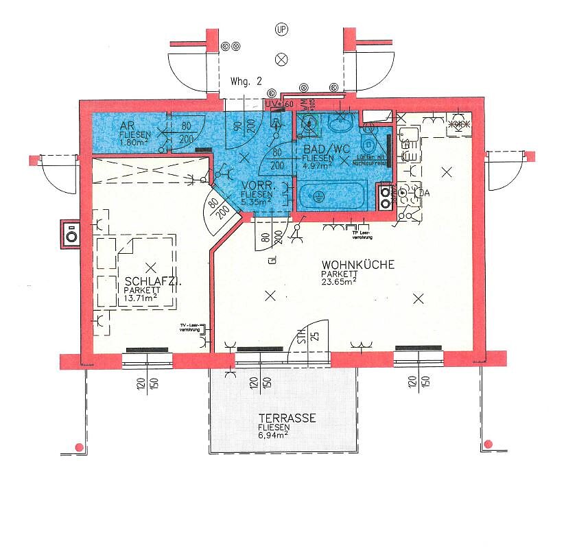
- Zimmer: 2
- Freiflächen: 6,94 m² (Terrasse)
- Keller: m²
- Parkplatz: 1 (Freistellplatz)
- Kaution: € 1.750
- Miete: € 550,61
Untertreubach 74/2
Mtl. Miete inkl. Betriebskosten, Abstellplatz und USt.
Ohne Strom und Heizung.
Vermietbar ab 01.04.2026
HWB-Wert: 87 kWh/m²
HWB-Klasse: C
fGEE-Wert: 1,35
fGEE-Klasse:C
Sie haben Interesse?
Ich freue mich über Ihre Anfrage!






