Wohnanlage Pettenbach - Zierauerweg 5 und 7

Zierauerweg,
4643 Pettenbach

Die zentral gelegene Wohnanlage Zierauerweg wurde 2016/2017 erbaut und besteht aus 24 Wohneinheiten samt eigenen Kellerabteil. Das Wohngebäude besteht aus einem Kellergeschoß mit Tiefgarage und drei oberirdischen Geschoßen. Die Wohnungen sind durch ein zentrales Stiegenhaus mit Lift erschlossen.

Jede Wohnung hat einen zugewiesenen Stellplatz in der Tiefgarage inklusive einem Handsender für den automatischen Tiefgaragen-Torantrieb. Im Freien befinden sich die Besucherparkplätze.

Die Anbindung an das öffentliche Verkehrsnetz liegt in unmittelbarer Nähe. Fußläufig sind sowohl der Marktplatz als auch öffentliche Verkehrsmittel (Bus) in wenigen Minuten erreichbar. Sonstige Infrastruktureinrichtungen wie Ärzte, Kindergarten, Schule, Einkaufs-möglichkeiten im Almtalcenter und das Sport- und Freizeitzentrum sind im Ortszentrum vorhanden

 

  • provisionsfrei
  • unbefristet
  • Kellerabteil
  • Tiefgarage
  • Lift
  • Wohnraumlüftung
  • Fußbodenheizung
  • Nahwärme

Bitte akzeptieren Sie alle Cookies, um Google Maps anzuzeigen.


Flächen
  • Top
  • Geschoß
  • Zimmer
  • Wohnen (ca.)
  • Freiflächen
  • Eigengarten
  • Parkplatz
  • Kaution
  • Miete (ca.)
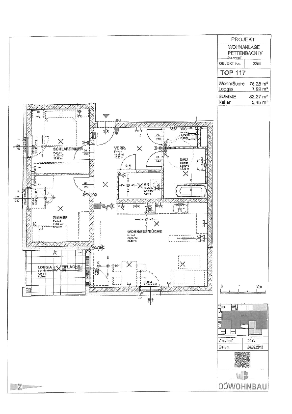
  • Zimmer: 3
  • Freiflächen: 7,99 m² (Loggia)
  • Keller: m²
  • Parkplatz: 1 (TG)
  • Kaution: € 2.587
  • Miete: € 824,73

Zierauerweg 7 / Top 117

Mtl. Miete inkl. BK, Heizung, Warmwasser, TG-Abstellplatz und USt. Ohne Strom

Bezug ab 01.06.2026

HWB-Wert: 23 kWh/m²
HWB-Klasse: B
fGEE-Wert: 0,76
fGEE-Klasse:A

Sie haben Interesse?

Ich freue mich über Ihre Anfrage!