
Wohnanlage St. Nikola an der Donau - Struden 7,8
Die auf einer Anhöhe gelegene Wohnanlage wurde im Jahr 1998 erbaut und verfügt über insgesamt 22 Wohnungen. Im Untergeschoß befinden sich die Allgemeinräume sowie die zu den Wohnungen zugeordneten Kellerabteile. Zur Anlage gehören ein großer Spielplatz und eine Grünfläche. Alle Wohnungen bieten einen schönen Blick auf die Donau. Der beliebte Donauradweg führt unterhalb der Wohnanlage vorbei. Stille Wald- und Wanderwege laden zu ausgedehnten Wanderungen ein, vorbei an Aussichtspunkten mit herrlichem Blick über das Donautal, Burgen und Ruinen. Die Wohnanlage wurde 2017 außen saniert.
- provisionsfrei
- unbefristet
- Allgemeinräume
- Loggia/Balkon/Eigengarten
- Garagenabstellplatz
- Donaublick
- SAT-Anlage
- Ölheizung
- Haussanierung 2017
- Top
- Geschoß
- Zimmer
- Wohnen (ca.)
- Freiflächen
- Eigengarten
- Parkplatz
- Kaution
- Miete (ca.)
- 1
- EG
- 3
- 76 m²
- 5 m² (Loggia)
- 58 m²
- 1 (Garage)
- € 2.110
- € 670
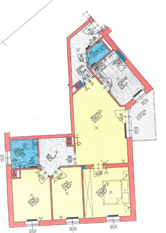
- Zimmer: 3
- Freiflächen: 5,61 m² (Loggia)
- Eigengarten: 58,46 m²
- Keller: 3 m²
- Parkplatz: 1 (Garage)
- Kaution: € 2.110
- Miete: € 670,25
Struden 7/1
Monatliche Miete inkl. BK, Stellplatz und Ust.
Exkl. Strom und Heizung.
Zur Wohnung gehört ein Eigengarten!
Bezug 01.11.2025
- 11
- 3.OG
- 3
- 70 m²
- 5 m² (Balkon)
- 1 (Garage)
- € 1.950
- € 623
- Zimmer: 3
- Freiflächen: 5,61 m² (Balkon)
- Keller: m²
- Parkplatz: 1 (Garage)
- Kaution: € 1.950
- Miete: € 622,97
Struden 7/11
Monatliche Miete inkl. BK, Garage und Ust.
Exkl. Strom und Heizung.
Vermietbar ab sofort