Wohnhausanlage Schalchen - Unterlochen 60

Unterlochen 60,
5231 Schalchen

Das Grundstück liegt ca. 1 km vom Zentrum der Gemeinde Schalchen entfernt und grenzt unmittelbar an die Gemeinde Mattighofen.

Das Gebäude verfügt über insgesamt 11 Wohnungen und ist dreigeschossig. Das gegenständliche Haus wird durch ein zentrales Stiegenhaus erschlossen und besteht aus fünf 3-Raumwohnunen und sechs 2-Raumwohnungen mit Größen ca. 55 m² bis ca. 75 m² zuzüglich Freiflächen bzw. Eigengärten im EG.

Im Erdgeschoß des Wohnhauses sind Kellerabteile, Wasch-/Trockenraum und Haustechnik untergebracht. Die Fahrradabstellplätze befinden sich in einem überdachten Bereich direkt beim Gebäude. Es wird kein Keller errichtet.

Die Wohnanlage wird in Niedrigstenergiebauweise mit heizkostensparender kontrollierter Wohnraumlüftung errichtet und mit Ferngas und Solaranlage ausgestattet. Jede Wohnung erhält einen KFZ-Stellplatz im Freien. Es stehen weiters genügend Besucherparkplätze zur Verfügung.

  • Provisionsfrei
  • Unbefristet
  • ruhige Lage
  • Autoabstellplatz
  • uvm....

Flächen
  • Top
  • Geschoß
  • Zimmer
  • Wohnen (ca.)
  • Freiflächen
  • Eigengarten
  • Parkplatz
  • Preis
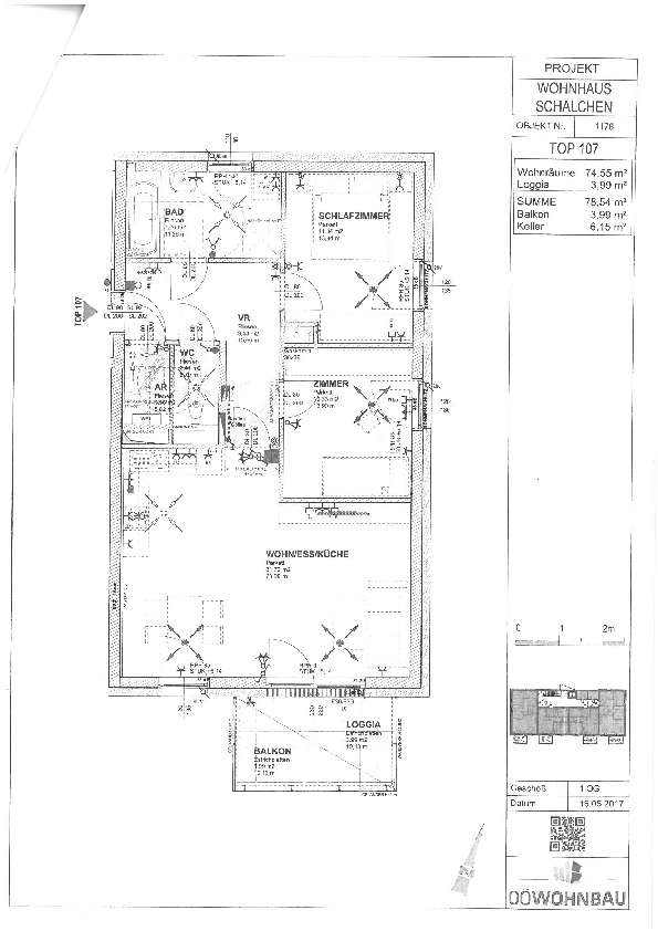
  • Zimmer: 3
  • Freiflächen: 7,98 m² (Loggia + Balkon)
  • Keller: m²
  • Parkplatz: -
  • Preis: € 718,50

Unterlochen 60 / Top 107

Mtl. Miete inkl. BK, Garage, Abstellplatz und USt. Ohne Strom und Heizung.

Bezug nach Rücksprache mit dem Vormieter

Küche vorhanden (Ablöse seitens des Vormieters gewünscht)

HWB-Wert: 23 kWh/m²
HWB-Klasse:
fGEE-Wert: 0,59
fGEE-Klasse:

Sie haben Interesse?

Ich freue mich über Ihre Anfrage!